


















CONSTRUÍDO
BRASÍLIA-DF, 2023
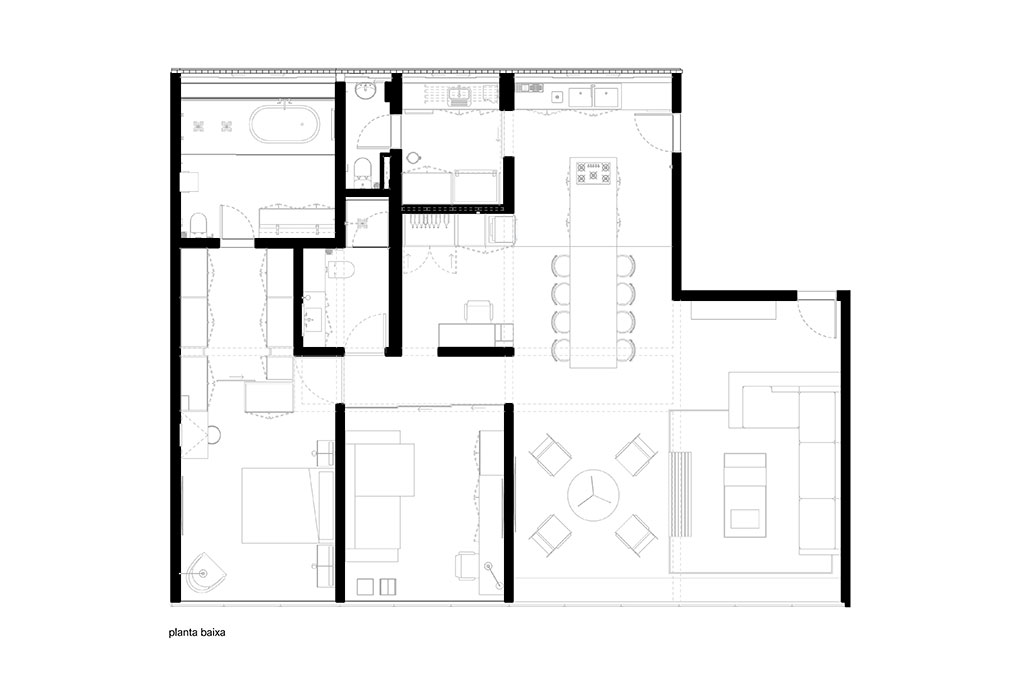
Localizado na Superquadra 114 da Asa Sul em Brasília, o edifício onde se encontra o apartamento foi projetado pelos arquitetos Marcelo Campello e Sérgio Rocha em 1961. Trata-se de um edifício do tipo “lâmina”, um bloco com uma fachada modular envidraçada e uma fachada de “fundos”, coberta por elementos vazados de ventilação (cobogós). Um dos objetivos do projeto foi eliminar a compartimentação existente na área social e conectá-la à fachada ventilada de cobogós nos fundos do apartamento. Assim, obtivemos um espaço social, cozinha e jantar com ventilação natural cruzada. Desta forma, o apartamento teve sua área social ampliada e a cozinha foi integrada à sala. O objetivo dos moradores com a reforma era transformar o apartamento em um ponto de encontro para a família e amigos.
Com essa premissa, o imóvel de três dormitórios foi totalmente reformulado, criando um grande salão social com apenas uma suíte para o casal. Expusemos a estrutura original de vigas e pilares de concreto que estava embutida nas paredes que foram retiradas. O piso de taco de madeira, também original, foi retirado, restaurado e reinstalado.
Uma das alterações mais significativas foi a mudança de posição da cozinha, agora totalmente integrada à sala de jantar e estar, com a inclusão de um espaço lateral de apoio que conta com um armário adega. Nessa nova organização, os equipamentos são parcialmente expostos, enquanto a geladeira – o maior deles – foi “escondida” da vista da sala, posicionada no cômodo ao lado, que também funciona como área de serviço.
O primeiro quarto foi anexado à sala, enquanto o segundo se transformou em uma sala de TV e escritório, com a possibilidade de fechamento por uma esquadria de aço e vidro. O banheiro da suíte também foi reposicionado e conectado diretamente à fachada ventilada por meio dos cobogós do edifício, onde foi possível criar um jardim.
Autores:
Daniel Mangabeira, Henrique Coutinho e Matheus Seco
Coordenação: Luiz Lopes
Equipe: Luís Alcântara
Superfície Construída: 150m2
Projeto: 2020
Construção: 2021-2022
Obra: Salar Engenharia
Fotos: Julia Totoli