












CONSTRUÍDO
BRASÍLIA-DF, 2025
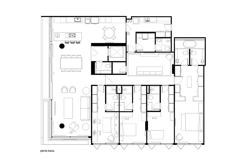
Desde o início, os clientes manifestaram o desejo de realizar intervenções mínimas na planta original, com a qual já se identificavam. Essa premissa norteou as decisões de projeto, priorizando soluções que respeitassem o layout existente. O partido do projeto consistiu em valorizar os generosos espaços do apartamento, potencializando a amplitude existente. Com o piso em porcelanato de tom cinza neutro já presente, optou-se por introduzir elementos de marcenaria e parte do mobiliário em madeira clara, com o objetivo de equilibrar o conjunto de materiais e conferir maior sensação de aconchego ao conjunto. A iluminação natural, um dos atributos mais relevantes do imóvel, foi preservada e integrada às decisões de projeto, reforçando a atmosfera leve e acolhedora dos ambientes.
Autores:
Daniel Mangabeira, Henrique Coutinho e Matheus Seco
Coordenação: Bárbara Neumann
Superfície Construída: 270m2
Projeto: 2024
Construção: 2024-2025
Obra: Tech Haus Engenharia
Fotos: Julia Totoli