






























BUILT
ARACAJU – SERGIPE, 2025
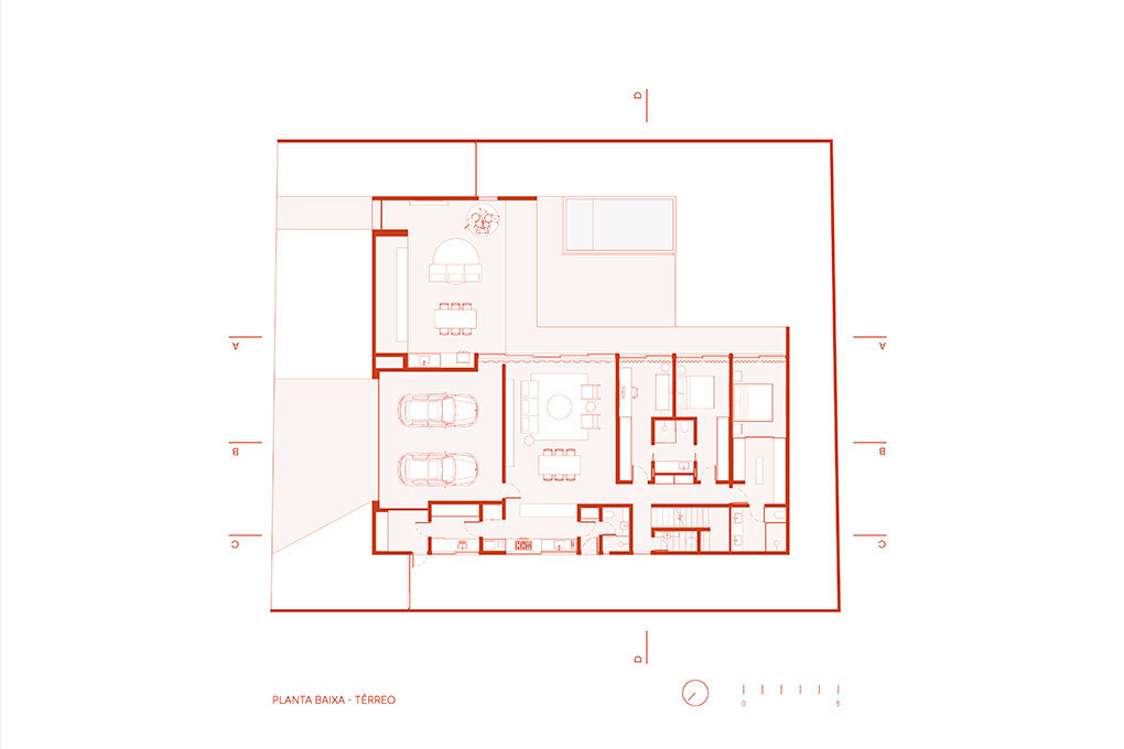
The house is located in a gated community on the southern waterfront of Aracaju, in a setting removed from urban dynamics. In response, we proposed a house oriented toward the interior of the lot. With nearly identical width and depth, the site led to the layout of the program in an “L” shape, shifting the backyard—traditionally placed at the rear—to the center of the plot. This central space, which receives the morning sun, is enclosed by the house itself and by the surrounding walls, forming a courtyard with a swimming pool onto which the bedrooms, verandas, living room, and kitchen open. On the upper floor, the office volume projects over the courtyard toward the rising sun, offering unobstructed views of the sky above Gameleira Beach, near the entrance to the condominium. The circulation leading to the office also connects two open terraces.
Aracaju’s hot climate, marked by the constant presence of winds, influences the organization of the spaces. As in many houses in the city, part of the living room functions as an open veranda, without window frames, facing the courtyard. Most of the house’s openings are oriented toward the morning sun, with the exception of the horizontal kitchen window and the side access points of the lot. The few openings facing the street (pedestrian entrance, garage, and office circulation) are protected by opaque doors in a tone close to the predominant white.
The landscaping primarily features restinga vegetation, an ecosystem characteristic of the Sergipe coastline. Large concrete planters with these species also line the open terraces, serving as protection against excessive wind.
Authors: Daniel Mangabeira, Henrique Coutinho, Matheus Seco
Coordination and Development: Julia Huff and Marina Lira
Graphics: Lucas Ferro
Photography: Maurício Araújo
Landscape Design: Opyá Arquitetura
Lighting Design: Scharth
Construction: Eng. Bruno Melo