






































BUILT
BRASÍLIA – DF, 2024
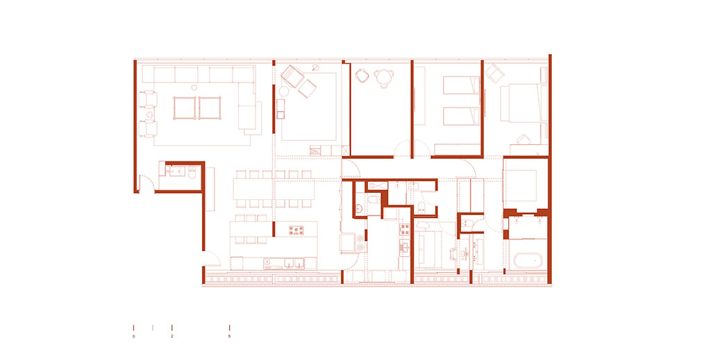
Block F of SQS 308, designed by Marcelo Campello and Sérgio Rocha, is located in Brasília’s “model block” and was inaugurated in 1961 with a compartmentalized floor plan typical of that period. The living room was separated from the dining room by a wall, and the linear service area occupied the entire section along the building’s rear façade—a ventilated façade covered with cobogós (perforated hollow elements).
One of the main goals of the renovation project was to eliminate the compartmentalization between the original living spaces and the service areas in order to enhance the social area. To achieve this, we removed the two service rooms and turned them into a more compact service area. The kitchen was relocated to the cobogó façade, allowing for an expansion of the social area (living and dining rooms, and kitchen), thereby creating a direct connection between the building’s two façades. This layout enables natural cross-ventilation throughout all social spaces in the apartment and allows natural light to reach deeper into the interior.
By repositioning the guest bathroom near the apartment entrance and transforming the first bedroom into a library, we exposed the concrete beam-and-column structure in the living room, kitchen, and bedrooms.
The residents have an extensive art collection, and one of the project’s greatest challenges was to accommodate it. We used the existing architectural elements—such as shelves, panels, and exposed structural components—as backdrops for the artworks. Another important challenge was the restoration of the apartment’s original flooring: it was completely removed prior to construction, refinished, and reinstalled during the final stages of the renovation.
Authors:
Daniel Mangabeira, Henrique Coutinho e Matheus Seco
Team: Luiz Lopes
Built Surface: 250 sqm
Project: 2021
Construction: 2022-2024
Photos: Joana França