


















CONSTRUÍDO
BRASÍLIA-DF, 2024
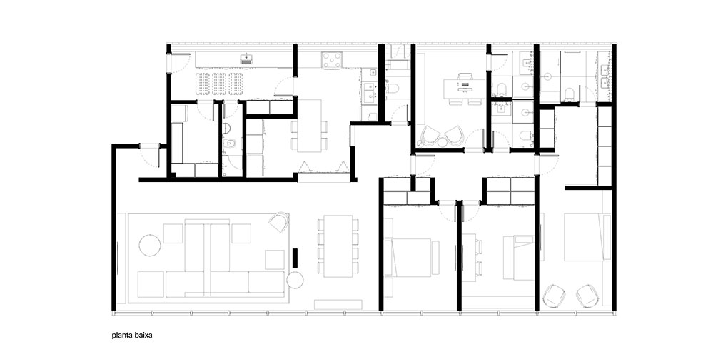
A reforma deste apartamento reorganizou os ambientes internos da cozinha e banheiros, com algumas intervenções mínimas em paredes existentes. A cozinha foi integrada a sala através de um passa-pratos, e seu fechamento é feito através de uma esquadria do tipo “camarão”. A maior intervenção foi localizada na cozinha e banheiros com a troca de revestimentos, pisos e bancadas.
O piso existente de ipê maciço assentado em formato de escama de peixe, foi preservado e restaurado. A iluminação do apartamento também foi toda substituída por sistemas de LED integrado.
Autores:
Daniel Mangabeira, Henrique Coutinho e Matheus Seco
Coordenação: Luís Alcântara
Superfície Construída: 240m2
Projeto: 2023
Construção: 2023 – 2024
Obra: Bruno Goldenberg
Fotos: Julia Totoli