




































CONSTRUÍDA
TRANCOSO-BA, 2025
Implantada no alto de um talude de 15 metros, a casa fica próxima à praia de Itapororoca, em Trancoso, no sul da Bahia, Brasil, uma região de Mata Atlântica e com clima tropical úmido. Aproveitando a topografia natural, a implantação elevada proporciona vistas privilegiadas do mar e favorece a ventilação cruzada, reduzindo a necessidade de sistemas artificiais de climatização.
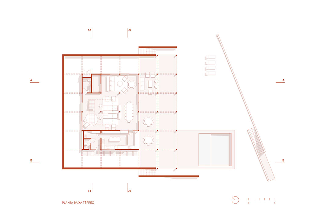
A modulação de 3,6 x 3,6 metros em grelha ortogonal define o sistema estrutural de madeira laminada colada (MLC) em Pinus, escolhido tanto por sua sustentabilidade quanto pela resistência mecânica e estabilidade dimensional em ambientes úmidos.
A casa foi localizada na porção posterior do terreno para que a visão a partir da entrada expusesse apenas um pavimento e resguardasse a fachada oeste do sol poente, estratégia passiva de proteção térmica. Essa solução valoriza a integração discreta da edificação com o entorno, respeitando a vegetação existente e o caráter preservado da região. Em contrapartida, a fachada leste expõe os dois pavimentos e reforça o uso da varanda alpendrada que circunda a casa e protege todos os quartos voltados para o Oceano Atlântico, maximizando a vista e a ventilação natural.
A arquitetura colonial brasileira consolidou o uso da varanda alpendrada, principalmente em casarões rurais, como nas fazendas de cacau no sul da Bahia. Essa tipologia, reinterpretada e adotada aqui de forma contemporânea, atua como elemento de transição entre interior e exterior, proporcionando sombreamento, proteção contra as chuvas tropicais e favorecendo a convivência ao ar livre.
Autores:
Daniel Mangabeira, Henrique Coutinho e Matheus Seco
Coordenação: Julia Huff
Equipe: Luis Alcântara e Pedro Souza
Superfície Construída: 860m2
Projeto: 2022 – 2024
Obra: 2024 – 2025
Construção: Timbau (estrutura) + Rafael
Fotos: Joana França