


















CONSTRUÍDO
BRASÍLIA-DF, 2025
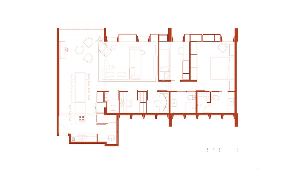
Localizado na “quadra 05” da Área Octogonal em Brasília, o edifício onde se encontra o apartamento foi projetado pelo arquiteto Elvin Mackay Dubugras na década de 80. Trata-se de um edifício com fachadas pré-moldadas de concreto e estrutura perimetral, deixando a planta livre de pilares. Um dos objetivos deste projeto de reforma foi maximizar a área social do apartamento, transformando-o em um ponto de encontro para a família e amigos. Com essa premissa, o imóvel de 125m2 e quatro dormitórios foi totalmente reformulado para o apartamento contasse com um grande salão social e apenas dois quartos para abrigar o casal com um filho.
Uma das alterações mais significativas do projeto foi a integração da cozinha à sala de jantar e estar. Nessa nova organização, reposicionamos a área de serviço, criamos um lavabo e dois escritórios para o casal, que trabalha em casa. Dois quartos originais foram anexados à sala, enquanto o quarto do filho foi reposicionado para dar mais espaço a suíte. Os banheiros social e da suíte também foram reconfigurados e reformados.
A primeira ação do projeto foi expor a laje e as vigas de concreto existentes sobre toda a área social. Em seguida, acabamentos de piso e revestimentos foram unificados ou simplificados. Utilizamos o mesmo porcelanato cinza fosco em todo o apartamento e apenas duas cores de cerâmicas retangulares para as áreas molhadas. A marcenaria, por sua vez, utiliza apenas dois tipos de acabamento: lâmina natural ou superfície texturizada branca.
Autores:
Daniel Mangabeira, Henrique Coutinho e Matheus Seco
Coordenação: Bárbara Neumann
Equipe: Jessica Campos
Superfície Construída: 125m2
Projeto: 2023
Construção: 2024-2025
Obra: Tech Haus Engenharia
Fotos: Julia Totoli